საერთაშორისო არქიტექტურული ჯილდო “ლოჯიების მიშენებისთვის” – რენოვაცია ევროპულად
ავტორი: ილია ვარლამოვი
ორ წელიწადში ერთხელ ევროკავშირი თანამედროვე არქიტექტურაში მიღწევებისთვის მის ვან დერ როეს პრემიას გასცემს.
2019 წელს მთავარი პრიზი არა რომელიმე ახალმა შენობამ, არამედ ქალაქ ბორდოში არსებულმა ჩვეულებრივმა მრავალსართულიანმა სახლმა დაიმსახურა, რომელსაც ერთდროულად სამმა ფრანგულმა არქიტექტურულმა ბიურომ (Lacaton & Vassal architectes; Frédéric Druot Architecture and Christophe Hutin Architecture) შთამბეჭდავი რენოვაცია ჩაუტარა.
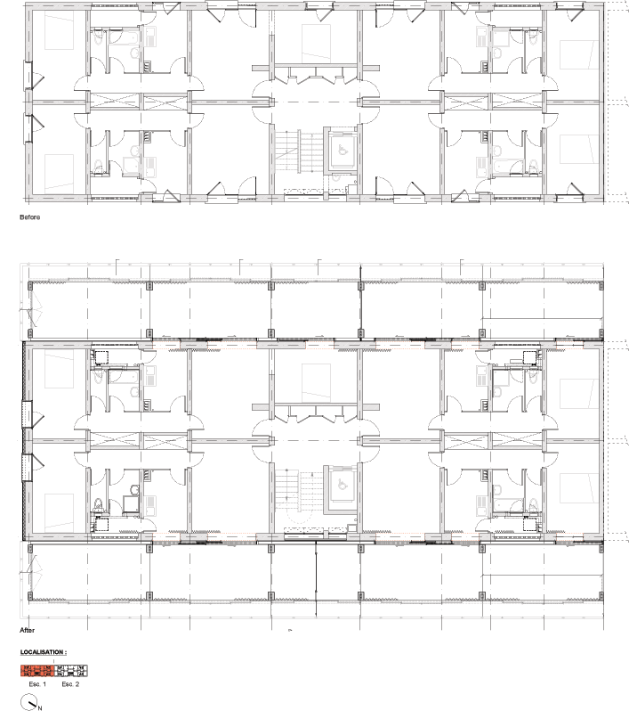
პროექტს Grand Parc Bordeaux ეწოდებოდა. რენოვაცია ბორდოში მდებარე სამი 10- და 15-სართულიანი სოციალური კორპუსის 530 ბინას შეეხო, რომლებიც 1960-იანი წლების დასაწყისშია აშენებული. თავად შეხედეთ, მსგავსი პროექტებით ჩვენთან დღესაც შენდება მთელი მიკრორაიონები:
რეკონსტრუქციის დამკვეთი იყო სახელმწიფო კომპანია Aquitanis, ბორდოს მერიის საბინაო ქვედანაყოფი.
არქიტექტორების ამოცანას წარმოადგენდა კორპუსის ბინადრებისთვის მეტი სივრცითა და განათებით უზრუნველყოფა. შემსრულებლებმა ეს ამოცანა შენობებისთვის დამატებითი ფენის მიშენებით გადაჭრეს (ქართული “ლოჯიების მიშენების” მსგავსად) – რის შედეგადაც მივიღეთ აივნების მწკრივი, რომელიც მთელ ფასადს მიჰყვება.
ერთ-ერთ შენობას მიშენება ორივე მხრიდან გაუკეთდა.
აივნების სიგრძე 3.8 მეტრია.
ბინების პატარა ფანჯრები დიდი გასაწევი კარებით შეცვალეს, რომლებიც ზამთრის ბაღში გადის – რენოვაციის ავტორების აზრით, აივანზე სწორედ ზამთრის ბაღი უნდა იყოს მოწყობილი.
თუმცა, ჩვენ ხომ ვიცით, რომ აივნები სულაც არაა ბაღების ადგილი!
ამ ბინების ბედნიერ მფლობელებს ახლა იმხელა აივნები აქვთ, რომ იქ თავისუფლად შეიძლება შეინახო Citroen DS-ის ზამთრის საბურავები, ძაღლის ჯიხური, თხილამურები მარტენ ფურკადის ხელმოწერით და ფეხბურთის ბურთი ზიდანის ავტოგრაფით, ერთი-ორი კასრი შატო იკემა და კიდევ დარჩება ადგილი მაგიდისა და ორი სკამისთვის, თუ, რა თქმა უნდა, სახელმწიფო დახმარება ყველაფერ ამას გასწვდება 🙂
გარე შემინვამ შენობის ენერგოეფექტურობაც გაზარდა, ხოლო სითბური ეფექტის თავიდან ასაცილებლად ბინები შუქის ამრეკლი დარაბებით აღჭურვეს.
შენობის ძველი ლიფტები უფრო ფართო და მძლავრით შეცვალეს და ამასთან დაამატეს თითო ლიფტი ყოველ სადარბაზოში. ბინებში კი ჩაატარეს კოსმეტიკური რემონტი და აბაზანებში შეცვალეს ელექტროგაყვანილობა.
ჟიურის დასკვნით, რენოვაციამ ყველა ბინას “სივრცისა და ცხოვრების ახალი ხარისხი შესძინა – მაშინ, როდესაც სამშენებლო კომისიები სოციალური დასახლებების კვარტლებში ბინების ფართობის შემცირებას მოითხოვენ, აქ ფართობი გაიზარდა”, – ნათქვამია დასკვნაში.
გარდა ამისა, Grand Parc Bordeaux “გამოწვევას უგზავნის მთელ არსებულ ომისშემდგომ საბინაო ფონდს, მინიმალური დანახარჯებით მაქსიმალური შედეგის მიღების საკითხში”, საყურადღებოა, რომ ამისთვის საჭირო არ გახდა კორპუსების დემონტაჟი.
რენოვაცია მთლიანად 26.5 მილიონი ევრო დაჯდა (50000 თითოეულ ბინაზე). ჟიურიმ საგანგებოდ აღნიშნა, რომ მცხოვრებლების ქირაზე ამას გავლენა არ მოუხდენია და რენოვაციის განმავლობაში მათ დროებით საცხოვრებელშიც კი არ მოუწიათ გადასვლა.
პროექტი შეარჩიეს საკონკურსოდ შემოსული 383 ნამუშევრიდან, რომლებიც ევროპის 38 ქვეყნის 238 ქალაქიდან გამოაგზავნეს. ჟიურის მუშაობაში 76 დამოუკიდებელი ექსპერტი მონაწილეობდა.
ორიგინალი: https://varlamov.ru/












